Stuga att hyra i Tärnaby, Storuman, Västerbotten
Modern sportstuga i Tärnaby 6bäddar vedeldad bastu
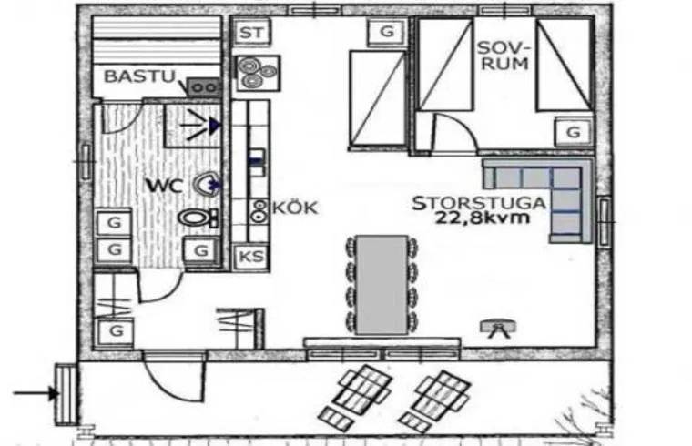
- Boyta: 56 m²
- Antal rum: 2
- Antal bäddar: 6
- Priser och lediga veckor
- Högsäsong: 4700 SEK/vecka, 700 SEK/dygn
- Lågsäsong: 2900 SEK/vecka, 450 SEK/dygn
- Mellansäsong 1: 3300 SEK/vecka, 575 SEK/dygn
Beskrivning
Rök och pälsdjursfri stuga 5km till Ingemar- & Anja-backen. 2,5 mil till Hemavan.
Nära till elljusspår.
100m till sjön m båt att låna.
Vandringsleder inpå knuten m vattendrag och fjälltjärnar med ädelfisk.
Enklare fiskeredskap kan lånas, (vinter & sommar).
6 bäddplatser, 3 våningssängar.
Täcken och kuddar finns i stugan, sängkläder tar ni med själva.
Kombinerat kök och storstuga med matplats för upp till 10 personer.
Välutrustat kök med Kyl & frys, elspis, vedspis, mikro, kaffebryggare, brödrost mm.
WC med dusch och underbart kallkälle-vatten i kranarna.
Vedeldad bastu.
Bra täckning för mobiltelefon och mobilt bredband.
Gott om p-plats på gården.
Motorvärmareuttag.
Förskottsbetalning erfordras.
Vägbeskrivning
4 km från Tärnaby centrum.
Bättre beskrivning fås vid förfrågan.
Bostadens Faciliteter
- Allergivänligt
- Bastu
- Dusch
- El ingår
- Frys
- Husdjur ej tillåtna
- Kylskåp
- Matlagningsmöjligheter : Elspis + vedspis
- Micro
- Mobiltelefontäckning
- Rökning förbjuden
- Separata sovrum : 1
- TV
- Tvättmaskin
- Uteplats med utemöbler
- Veranda
- WC
Aktiviteter
- Båtuthyrning
- Cykeluthyrning
- Fiske
- Forsränning
- Hundspann
- Kanotuthyrning
- Klättring
- Längdskidåkning
- Simhall
- Slalombacke
- Snöskoterkörning
- Vandringsled
I närheten finns
- Affär
- Apotek
- Bank
- Busshållplats
- Sjö
- Skog
